Site Map

Home Page

FAQS

Shipping
Container
Sales

Portable Offices,
Spare Rooms etc.

Homes, Buildings,
Workshops etc.

Shipping
Container Homes

Drafting, Permits etc.

More Information

Recommendations & Tips

Recent Projects

Videos

E-Mail Us:

[email protected]

Blog

            Portable Homes - Lava Runner series – Wood Frame

The floor plan directly below is our original Lava Runner design. No one has elected to build one exactly like this, everyone has taken this original home plan and tweaked it to fit their requirements, and that’s OK with us! The photographs you see directly below our original floor plan is case in point, and that Lava Runner home was featured in a research paper published by The National Association of Realtors. The research paper is a comprehensive, contemporary examination of the current state of shipping container and modular homes. Our viewpoint and perspective is shared in the paper, along with the modified Lava Runner photos you see below:


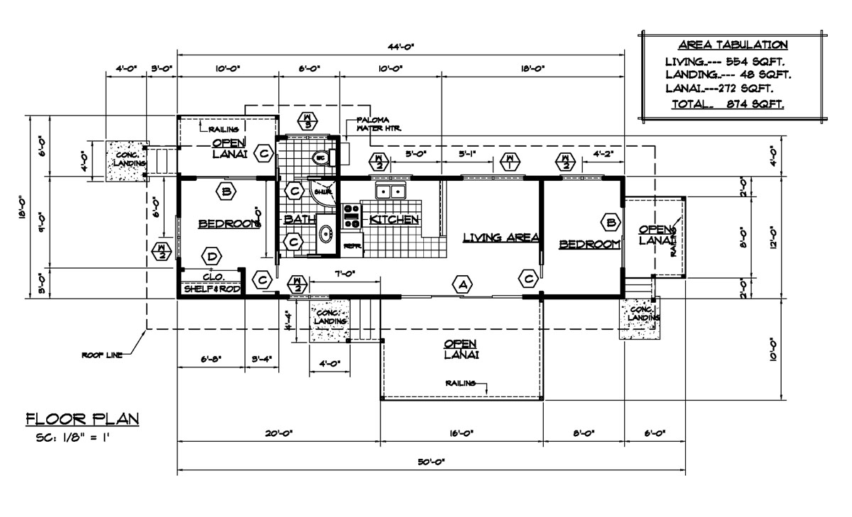
Floor plan of modified Lava Runner (photos directly above) featured by Natl. Assoc. of Realtors.

What would you do if you bought land and the “neighbors from hell” build right next to you, or if you want to build in an area that could be threatened by lava? Well, have no fear- we design and build the most affordable and quickly moved homes in the industry. You could pick up and move, then sell the land and build elsewhere, or get out of harms way if lava ever threatened your home!
One of our Lava Runner designs was featured in a research paper done by the National Assoc. of Realtors! Take a look at this floorplan and tell us if you don't think this is a fabulous and functional design that could comfortably accommodate two adults and two children. All the lanais and landings are designed to be quickly detached from the main house, and within four hrs. max time the center post and piers can be removed, plumbing and electricity disconnected, and a low-boy trailer can back right underneath the house and move it. Our Lava Runner series of homes can be made any size but no wider than 14 ft. on any one module if you desire portability, and are perfect for areas like Lower Puna. You could very easily save your home if lava threatened it. Of course, every home that we design can be built as a permanent home, on post and pier, on a slab, or whatever you need, and permanent homes  can be built at any width so long as you do not plan on moving it.

Our original Lava Runner plan shown here is 12' x 44' with landings and decks. Check out the hallway to master bedroom and toilet room access from bedroom as well as from outside. Notice the pocket doors for more room to move around the home with ease. We can make it bare bones as a workshop without all the build-ins and decks etc. you see here for much less, and we can make any size. Photos shown are of a 14’ wide lava runner that we recently built for a customer in Puna. That floor plan is shown below those photos. We appreciate you reading though the info on our website before calling or scheduling a consultation if at all possible. Aloha, John Rogers and team, Affordable Portable Housing.

Siding choices- T1-11 is probably the best siding in humid climates, and Is well-treated against termites. We prefer the rough-sawn T1-11 with battens (small wood trim placed vertically to cover seams and give you a plantation style look) OSB siding- is a wood-based siding made from different sizes of wood, and is very popular with contractors these days. The OSB wood pieces are baked under extreme pressure with the strongest wood glues on the planet to make 4x8, 4x9 or 4x10 panels (smart panels), or horizontal siding, which comes in different widths. The 4x smart panels that we prefer are the cedar textured lap edge panels. Termites do not like OSB, the product can withstand rain and humidity really well, and is affordable. T1-11 siding is best for humid climates, and is soaked thru to the center with non-toxic borite termite treatment, but we don’t like the appearance of those ugly teardrop shaped patch plugs that they use to replace big knots in the siding, or the deep grooves every 6 inches. They make a rough sawn T1-11 siding panel, which is much prettier than the deep groove option, but it still has those ugly patches all over the place, which is why we recommend vertical battens if going with the rough sawn T1-11. OSB is widely used by many contractors. We can side your home or structure with any siding you want.

Roof options- you can choose any roof option you want, here is what we recommend: For water catchment folks- Steel roofing with factory applied ceramic paint which helps somewhat to reflect heat. You can apply Hawaiian sunguard coating to reflect much more heat, but you lose your 20 yr warranty by doing so. Another option is to sheet in your roof with plywood and cover with Hawaiian sunguard using their polyester fabric. This option will not give you that cozy plantation look like the steel roof will. All others- we somewhat like the new composition shingle roofs that reflect heat and give you a huge tax credit. The heat reflectance is not significant, but it gives you the shinge look with improved heat reflectance and a tax credit at the time of this writing. We prefer to ventilate the attic air space really well with solar powered fans and/or ridge vents, and also like to ventilate the interior living space with ventilating skylights or simply vents to let hot air rise straight up out of your interior living space. We also recommend windows that give you close to 100% ventilation. Those sliding vinyl windows are a little bit cheaper, and are quicker to install, but we greatly prefer glass jalousey windows, which are every bit as secure if you buy the plastic frames (expensive) or epoxy glue the glass into the units with aluminum frames (cheap price), and snap shut those windows when leaving your home. Snap shutting jalousey windows is almost as fast as sliding a vinyl slider, and the jalousey window is so much nicer to look through. Keep in mind though- criminals see jalouseys and they think “easy hit”, so that is a distinct disadvantage security wise. We ultimately prefer the air flow so much that jalouseys are our first overall choice. Allow us to meet with you, free of charge and free of any pressure what so ever, and we can go thru all the details and answer all of your questions. 808-339-5639.